
一、環境科研氣象監測站產品簡介
環境科研氣象監測站可全天候監測空氣中負氧離子濃度,同時可根據用戶需求擴展監測項目,如:空氣溫度、空氣濕度、PM2.5、PM10、大氣壓力、氧含量、噪聲、風速、風向等氣象要素;模塊化結構設計,傳感器都可以單獨替換,配備專業安裝支架,現場可通過LED屏幕直接讀取數據,亦可遠程云平臺/WEB/微信公眾號實時查看數據,后期運營維護方便。
二、環境科研氣象監測站應用范圍
旅游景區、生態莊園、濕地公園、瀑布公園、森林公園、自然保護區、售樓處、學校
三、環境科研氣象監測站技術參數
1、風速:測量原理超聲波,0~60m/s(±0.1m/s)分辨率0.01m/s;(發明專利,專利號ZL 2021 1 0237536.5)
2、風向:測量原理超聲波,0~360°(±2°)分辨率1°;(發明專利,專利號ZL 2021 1 0237536.5)
3、空氣溫度:測量原理二極管結電壓法,-40-60℃(±0.3℃)分辨率0.01℃;(北京市氣象局校準證書)
4、空氣濕度:測量原理電容式,0-100%RH(±0.3%RH)分辨率0.1%RH;(北京市氣象局校準證書)
5、大氣壓力:測量原理壓阻式,300-1100hpa(±0.25%),分辨率0.1hpa;(北京市氣象局校準證書)
6、PM2.5:測量原理光散射,0-1000ug/m3(±10%)分辨率1ug/m3
7、PM10:測量原理光散射,0-1000ug/m3(±10%)分辨率1ug/m3
8、噪聲:測量原理電容式,30-120dB(±1.5dB)分辨率0.1db
9、負氧離子:測量原理圓筒式電極吸入式,0-10萬個/cm3(±10%)分辨率1個/cm3
10、氧含量:測量原理電化學,0~25%Vol(±3%FS)分辨率0.1%
11、數據存儲:可存儲一年的原始監測數據;
12、數據傳輸:GPRS/4G/光纖
13、功耗:800w
14、供電方式:220V市電、太陽能(選配)
15、工作環境:溫度-40℃-60℃,濕度0%-100%
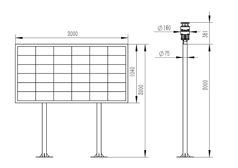
16、屏幕:2m*1米,由36塊P10單紅單元板拼接而成,單元板尺寸32cm*16cm
17、立桿:碳鋼雙立柱,每根立柱由2根1.5米立桿法蘭盤對接而成,可耐受15級強臺風
18、生產企業具有ISO質量管理體系、環境管理體系和職業健康管理體系認證
19、生產企業具有計算機軟件注冊證書
20、生產企業為3A級信用企業
四、環境科研氣象監測站產品特點
1、集成度高,方案靈活:系統可集成負氧離子、空氣溫度、空氣濕度、PM2.5、PM10、大氣壓力、氧含量、噪聲、風速、風向
2、系統穩定:已合作上千家公園景區,后臺運行穩定,免維護,故障率低
3、多種傳輸:可根據現場網絡情況定制傳輸方式,2G/4G/光纖
4、支持擴展:支持傳感器擴展,485接口、modbus協議傳感器都可以直接使用
5、顯示方案多樣:可根據現場需求,選用點對點、點對多、多對點的LED屏幕數據顯示方案
五、環境科研氣象監測站產品結構圖

六、環境科研氣象監測站產品尺寸圖

七、環境科研氣象監測站云平臺介紹
1、CS架構軟件平臺,支持手機、PC瀏覽器直接觀測、無需額外安裝軟件。
2、支持多帳號、多設備登錄
3、支持實時數據展示與歷史數據展示儀表板
4、云服務器、云數據存儲,穩定可靠,易于擴展,負載均衡。
5、支持短信報警及閾值設置
6、支持地圖顯示、查看設備信息。
7、支持數據曲線分析
8、支持數據導出表格形式
9、支持數據轉發,HJ-212協議,TCP轉發,http協議等。
10、支持數據后處理功能
11、支持外置運行javascript腳本
文章地址:http://www.gveh.cn/zhhj/2705.html




